



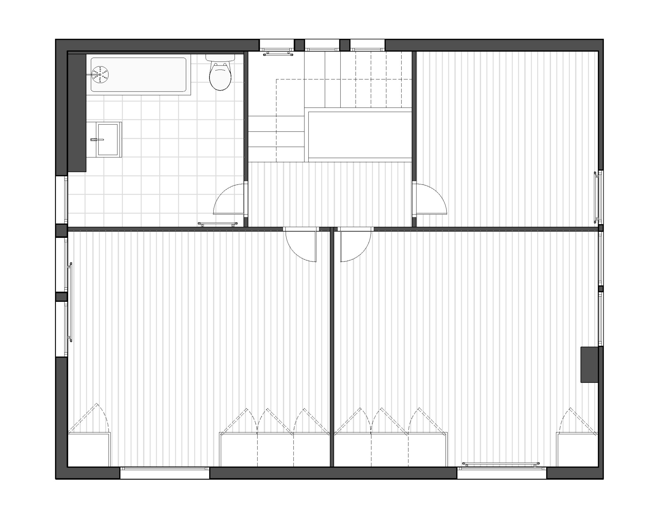
En cours – Rénovation et aménagement d’une maison sur deux niveaux avec jardin, offrant un accés directe à la Seine, en Seine-et-Marne. Au rez-de-chaussée, les espaces ont été entièrement repensés pour créer de vastes volumes tournés vers l’extérieur, mettant en valeur les vues sur le paysage. À l’étage, les trois chambres ont été rénovées, tandis que la salle de bain existante a été entièrement déposée pour faire place à une nouvelle organisation de l’espace, intégrant des agencements sur mesure.